
今回ご紹介する物件は、JR中央・総武線、東京メトロ東西線西船橋駅徒歩13分の場所にある元社員寮です。
グッドルームが運営する「goodroom residence」の仕組みを活用することで、法人から個人まで多様な入居ニーズを取り込み、建物の価値を最大化することが可能です。
目次
1.goodroom residence千葉県初進出!リノベーションと一棟借上の背景
物件データ
- 住所:千葉県船橋市海神南1-1450
- 築年数:1986年 (築40年)
- 総戸数:58戸+共用部(大浴場・サウナ・シェアラウンジ・フィットネスなど)
- 用途:寄宿舎

〈リノベーション後のエントランス〉
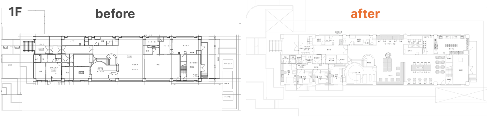
廃止された元社員寮の活用方法について、オーナー様よりご相談をいただき、マンスリー物件への再生をご提案いたしました。社員寮の閉鎖に伴い全部屋空室となったものの、一般賃貸として貸すことが難しいアセットタイプのため、長期の間遊休不動産となっておりました。
他社では取り扱いが難しい「元社員寮」という特殊なアセットでありながら、オーナー様のご希望に沿った事業計画をご提案できたことから、弊社にご依頼いただく運びとなりました。
【関連コラムを読む】廃止した築30年前後の社宅・社員寮。その活用方法とは?≫
2.主なリノベーションポイント
①開放感のあるエントランスとワークラウンジ

〈左:リノベーション前のエントランス 右:リノベーション後のエントランス〉
家具の配置によって「働く」と「休む」を緩やかにゾーニングし、気分や目的に合わせて、自由に居場所を選べるマルチラウンジを実現しました。
リモートワークにも最適な、ゆとりある広さと開放感を備えたラウンジ・ワークスペースを新設。
開放感があり、仕事にもリラックススペースにも用途ごとに多様に使えるワークラウンジは、周辺物件との大きな差別化ポイントになります。物件の顔となるラウンジです。

〈左:リノベーション前の厨房 右:リノベーション後のシェアキッチン〉
シェアキッチンでは、既存の調理台をそのまま活かしながら、電子レンジやオーブントースターといった調理家電のほか、基本的な調理器具も備え付けで用意しました。これにより、入居者様がすぐに自炊を始められるよう利便性を高め、入居促進の魅力付けを行っています。
また、収納面にも配慮しており、キッチン棚には入居者様ごとに使える専用ボックスを設置。調味料や小物類などを個別に管理できるため、共同利用でもストレスなく使える工夫を取り入れています。なお、食器類は衛生面の考慮や管理コストの削減から、各居室に個別で用意しています。
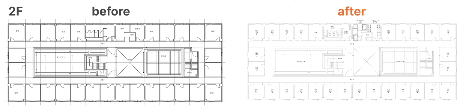
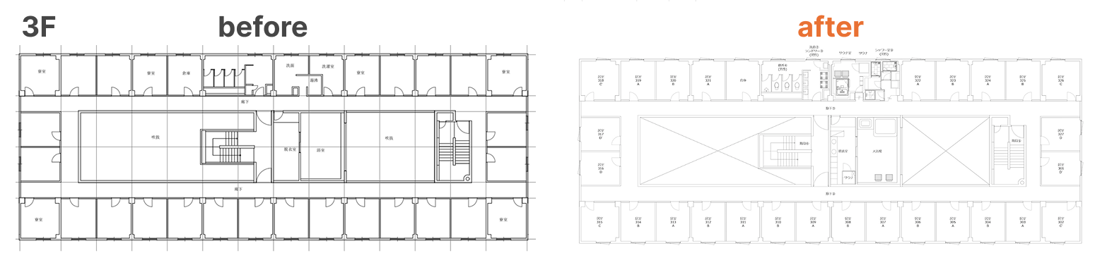
②ジムやサウナ・ウッドデッキなど、充実した共用部施設を新設

〈左:リノベーション前の大浴場 右:リノベーション後の大浴場〉
goodroom residenceとして、暮らしを豊かにする新たな共用部設備を設けました。
- 24時間利用できるジムを新設:かつて食堂や倉庫として使われていたものの、現在は活用しきれていない遊休スペースを24時間利用可能なフィットネスジムへと用途変更しました。
健康志向が高まる現代において、専用ジムなどの共用設備は入居者様にとって付加価値となります。周辺の競合物件と圧倒的な差別化を図り、安定した長期稼働が望めます。 - 1人で集中できる個室サイズのサウナを設計:週替わりではなく、男女ともに毎日サウナを満喫できるよう設置しました。既存の設備を活かした大浴場には個室サウナを新設。他人の目を気にせず、ご自身のペースで「ととのう」体験ができるプライベートサウナを完備。日々の疲れを癒やし、心身をリセットできる至福の空間をご用意しました。

〈左:サウナ 右:ワークスペース〉
ウッドデッキ
1階の屋上部分を活用し、2階から3階へと吹き抜ける開放的なウッドデッキを新設しました。もともとは共用の物干し場だった場所を、心地よいリフレッシュ空間へとアップデートしています。
建物内からシームレスにアクセスできるため、長時間のデスクワークの合間や、外の空気を吸って気分転換したい時のコーヒーブレイクに最適です。
また、日常動線の中で自然に利用されることを意図しつつ、視線の抜けや周囲との距離感にも配慮。外部に開かれながらも、周囲を気にせず落ち着いて過ごせる環境を整えました。
フォンブース
物件の競争力を高めるため、新たにライト・コンセント完備の「フォンブース」を導入しました。
他のgoodroom residenceでも、自宅での仕事環境を重視する「フリーランス」や「リモートワーカー」層の強力な集客フックとなっています。周辺の一般的な物件と明確に差別化できるため、空室期間の短縮や家賃下落の防止に直結します。

〈左:ウッドデッキ 右:フォンブース〉

〈左:リノベーション前の洗面スペース 右:リノベーション後の洗面スペース・ランドリー〉
③既存活用しつつ、ホテルライク仕様に施工した居室

〈左:リノベーション前の居室 右:リノベーション後の居室〉
専有部では、コストバランスを意識しながらも快適な住環境を実現しています。共用部にはサウナやラウンジなどの設備投資を重点的に行い、物件全体の価値を高める一方で、専有部では壁や棚は既存活用したままベッドや造作デスクを新設、デザインすることで、コストにメリハリをつけました。
内装は、コンパクトながらもホテルライクな印象を持たせることで、ミニマルかつ上質な空間に仕上げており、単身の若年層からシニア世代まで、幅広い入居者様に好まれるデザインとなっています。無理なくコストを抑えながら、資産価値と居住満足度の両立を図りました。
1階にあった旧管理人室は、和室とリビングを独立させた使い勝手の良い間取りに変更し、新たにバス・独立洗面台を新設しました。入居者様から要望の多い「専用の水回り設備」を完備したことで、より幅広いニーズに刺さる、競争力の高いお部屋へとバリューアップしています。

〈左:リノベーション前の管理人室 右:リノベーション後の居室〉
3.before/after図面



4.運用について〈法人利用も増加中:goodroomサブスくらしとは?〉
グッドルームでは、リノベーションの施工や一棟借上げにとどまらず、募集・運用までを一貫して自社で行っております。
募集は、当社の自社サイト「goodroom サブスくらし」にて実施しており、家具・家電付きのマンスリーマンションやホテルに自由に住み替えができるサービスとして、多くのユーザー様にご利用いただいています。
現在、首都圏を中心に19拠点でレジデンスを運営しており、平均稼働率は90%以上と高い実績を維持しております。
また、定期的なユーザーとの交流イベント(参加は任意)や、拠点内へのご意見回収ボックスの設置を通じて、日々いただくお声をサービス改善に活かす仕組みも整えております。
今回、goodroom residenceは千葉県内で初めてのオープンとなりました。
2週間〜長期まで滞在可能な点や、複数戸をまとめてご用意できる点から、研修中の滞在先や社宅として法人様からもご好評をいただいております。
>>>【毎月開催】入居をご検討中の方向けに現地内覧会も開催中
グッドルームでは社宅・社員寮、学生寮などの水回りが狭小で一般賃貸にコンバージョンが難しい寄宿舎でも高稼働率を実現しております。
一般賃貸のリノベーションを9,000件以上手掛けてきたからこそ、既存を活かしたリノベーション工事が可能です。
同じような物件にお悩みのオーナー様がいらっしゃいましたら、ぜひ一度グッドルームまでご相談ください。