まずは資料請求

立地が良いので、リノベーションでさらに家賃アップしたい

  • 申込までの日数
    完成前に申込

リノベーションの背景

  • 他物件との差別化でさらに、賃料アップを狙いたい

解決ポイント

  • ペット対応の無垢床で希少性アップ
  • 特別仕様を施して魅力的なキッチンに
  • ガラス戸で仕切ることで、光が広がる1DKに

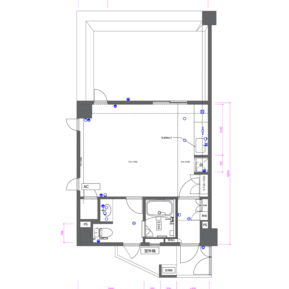
間取り図

  • Before

    before間取り
  • After

    after間取り

物件概要

物件種別
賃貸住宅
所在地
東京都目黒区
最寄り駅
中目黒駅
平米数
33㎡
構造
SRC造
築年
2001年
施工時の築年数
築18年
パッケージ
スタンダードパック
工事費用
約300万円
成約賃料
14.8万円

施工事例 No.38|立地が良い物件は内装に少し手を加えてイメージチェンジするだけで、賃料を大幅にアップさせることができます。今回のお部屋もその1つ。無事に、完工前にお申し込みをいただくことができました。

お問い合わせ

無料お見積り、ショールームの見学など
お気軽にお問い合わせください