まずは資料請求

築68年で在来浴室。カビ・ヤニ汚れが目立つお部屋をリノベーションし、長期保有していきたい

  • 家賃アップ
    3.1万円

リノベーションの背景

  • 築68年。長期間の入居により状態が悪く、特にカビやヤニ汚れが目立つお部屋だった
  • 物件に愛着があるため建て替えは行わず、リノベーションをして今後も大切に保有していきたいとお考え
  • 現代の入居者様に敬遠されがちな、在来浴室や置き型コンロのキッチンを交換したい
  • 別部屋でリフォームの経験があり、間取りに納得がいかなかったため、今回は「間取り提案力」の高いグッドルームにお任せしたい

解決ポイント

  • フルリノベーションで水回りの設備を全て交換し、今後も長期保有できる安心の物件へ再生
  • 脱衣所と独立洗面台を新設し、築年数を感じさせない入居者様に選ばれる清潔感のあるお部屋へ
  • 和室を洋室化。押入れのみだった収納は扉付きのクローゼットを設置し、より暮らしやすい空間に
  • 結果、賃料3万円アップに成功!

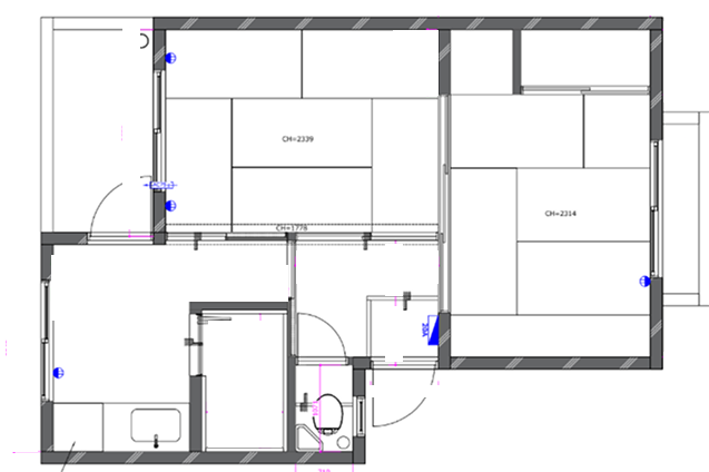
間取り図

  • Before

    before間取り
  • After

    after間取り

物件概要

物件種別
賃貸住宅
所在地
東京都大田区
最寄り駅
梅屋敷駅
平米数
38㎡
構造
SRC造
築年
1957年
施工時の築年数
築68年
パッケージ
プレミアムパック
従前賃料
8.9万円
成約賃料
12万円

\和室を活用したリノベーション特集/

施工事例No.349|築68年。長年の入居でカビやヤニ汚れが目立ち、旧式の設備が課題だった物件を所有されていたオーナー様。思い入れのある物件のため、建て替えずにリノベーションして長期保有を目指されていました。以前、別の業者でリノベーションしたお部屋は入居付けに苦戦したため、間取り提案力のある業者にお任せしたいとお考えでした。
フルリノベーションで水回りを一新し、現代の必須設備である独立洗面台と脱衣所を新設。和室は洋室へ変更し、大容量のクローゼットを設けることで入居者様の生活のしやすさを追求しました。築年数が経過していても、清潔感あふれる空間へリノベーションした結果、賃料3万円アップを実現しました。

お問い合わせ

無料お見積り、ショールームの見学など
お気軽にお問い合わせください