まずは資料請求

発見まで3ヶ月の告知事項物件。早期入居を獲得したい

  • 家賃アップ
    0.3万円
  • 申込までの日数
    完成前に申込

リノベーションの背景

  • 自然死による告知事項ありの物件。発見まで期間が空いていたこともあり、フルリノベーションが必須だった
  • 玄関から居室が丸見えなのでプライバシーを重視する入居者様から敬遠されがちな間取りだった
  • 3点ユニットバスや1口コンロは入居者ニーズから外れやすく、リーシングに苦戦
  • 以前ご依頼いただいた際に、「間取り提案力」をご評価くださり、再度ご依頼へと繋がりました

解決ポイント

  • 脱衣スペースを確保するため、ユニットバスの位置は変えずに、キッチンを移設。3点ユニットバスの分離を実現
  • 玄関と居室の間に建具を新設し、プライバシーを確保。キッチンも2口コンロへ変更し、入居付けのしやすさを向上
  • 結果、工事中にTOMOSブランドのファンである方からお申込み。告知事項をお伝えした上でも、デザインと機能性にご納得いただきました

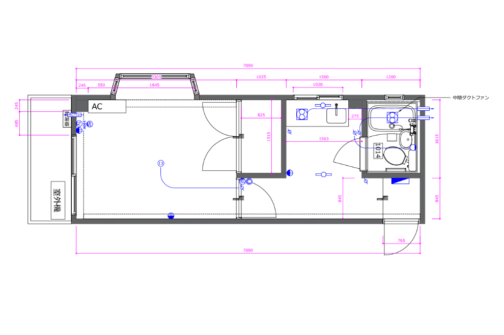
間取り図

  • リノベーション前の間取りです。
  • リノベーション後の間取りです。

物件概要

物件種別
賃貸住宅
所在地
東京都立川市
最寄り駅
立川駅
平米数
19.44㎡
構造
鉄骨造
築年
1989年
施工時の築年数
築37年
パッケージ
プレミアムパック
従前賃料
5.2万円
成約賃料
5.5万円

\16〜25㎡のリノベーション事例を多数ご紹介!/

施工事例No.348|告知事項があり、発見まで期間が空いていた物件のため、フルリノベーションが必須でした。既存の間取りは玄関から居室が丸見えで、3点ユニットバスや1口コンロなどの設備にも改善したいとお考えのオーナー様。以前の施工での「間取り提案力」をご評価くださり、再度お任せいただきました。3点ユニットバスを分離し、キッチンの移設をすることで、脱衣所を確保。玄関と居室の間に建具を新設してプライバシー性を高めました。結果、工事中にTOMOSファンの方よりお申し込みを獲得。告知事項というハンデがあったものの早期入居を実現しました。

お問い合わせ

無料お見積り、ショールームの見学など
お気軽にお問い合わせください