BEFORE & AFTER GALLERY
-
Before
リノベーション前の居室です。
-
After
床材は、高級家具に使われることも多い複合オーク材を使用しています。
-
Before
リノベーション前はリビングとキッチンが分かれていました。
-
After
壁を取り払い、オープンタイプのキッチに変更し、より広々としたお部屋にリノベーションしました。
-
Before
キッチンも交換します。
-
After
ハイグレードタイプの取っ手レスのキッチンを採用しました。
-
Before
リノベーション前のトイレです。
-
After
リノベーション後のトイレです。
-
Before
リノベーション前の浴室です。
-
After
ボーダーミラーやバイザーカウンターを設置したユニットバスにし、グレードアップしました。
-
Before
リノベーション前は一般的な独立洗面台です。
-
After
収納力の高い、取っ手レス独立洗面台を採用し、より高価格帯の賃貸を目指します。
-
Before
リノベーション前はカーペットの床でした。
-
After
リノベーション後は玄関まで無垢床が広がりました。
-
After
サービスルームには可動棚や室内窓も設置しました。
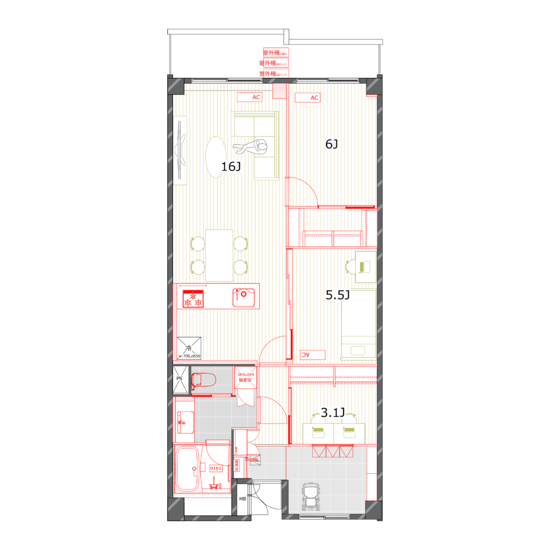
間取り図
-
Before
-
After
物件概要
- 物件種別
- 分譲、賃貸住宅
- 所在地
- 東京都渋谷区
- 最寄り駅
- 大崎駅
- 平米数
- 76.99㎡
- 構造
- SRC造
- 築年
- 1981年
- 施工時の築年数
- 築44年
- パッケージ
- high grade TOMOS
- 従前賃料
- 20万円
- 成約賃料
- 35万円
長期入居者様が退去され、バリューアップをご希望のタワーマンションのご依頼です。目黒川の眺望の良さや主要駅へのアクセスの良さを活かして賃料大幅アップを狙いたいとご要望があり、高価格賃貸向けのhigh grade TOMOS(パッケージ)のリノベーションをご提案いたしました。設備フル交換だけでなく、玄関土間やサービスルームの多目的空間の新設で付加価値を向上し、開放的なキッチンとホテルライクな水回りでお部屋全体をグレードアップ。結果、家賃15万円アップ!+完工後1ヶ月で入居申込獲得に成功しました。