まずは資料請求

東京の中心地。物件のポテンシャルを活かし、費用対効果を最大にするリノベーションをしたい

  • 家賃アップ
    6万円
  • 申込までの日数
    完成前に申込

リノベーションの背景

  • 好立地の物件をリノベーションし、売却価格を最大化にしたい
  • 既存の設備を活かしながらリノベーションし、費用対効果を上げたい
  • 過去グッドルームの工事の質や賃料アップ率をご評価いただき、再度ご依頼いただきました

解決ポイント

  • 高級感が出るグレードの高い設備を採用しつつ、玄関のライトや収納は既存活用
  • 食洗機やシャワー水栓付きのキッチン、浴室乾燥を導入し、高賃料を狙う
  • 賃貸では珍しいオーク材の無垢床を採用し、近隣物件との差別化をはかる
  • 結果、賃料6万円の大幅アップ&工事中の入居申込み獲得に成功!

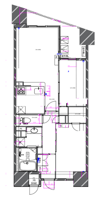
間取り図

  • Before

    before間取り
  • After

    after間取り

物件概要

物件種別
賃貸住宅
所在地
東京都中央区
最寄り駅
小伝馬町駅
平米数
56.58㎡
構造
RC造
築年
2005年
施工時の築年数
築20年
パッケージ
high grade TOMOS、スタンダードパック
従前賃料
26万円
成約賃料
32万円

\20部屋以上をまとめてご紹介/

好立地にある物件のポテンシャルを活かし、賃料をさらに上げたいとお考えの法人オーナー様。過去の施工品質と賃料アップの実績をご評価いただき、今回もご依頼いただきました。
状態の良い玄関ライトや収納などは既存活用しつつ、高級感が出る設備に費用を集中させるメリハリのあるリノベーションを実施。食洗機やシャワー水栓付きのキッチンを新たに導入し、賃料アップを目指しました。賃貸では珍しいオーク材の無垢床を採用して近隣物件との差別化を図りました。
結果、賃料6万円の大幅にアップ&工事中に次の入居申込み獲得に成功しました。

お問い合わせ

無料お見積り、ショールームの見学など
お気軽にお問い合わせください